- Objekt Nr. 3
- Objekt anfragen
- Objekt weiterempfehlen
- Objekt vormerken
- Seite als PDF speichern od. ausdrucken
CALVIN Immo - Persönliche Beratung
Überzeugen Sie sich bei einer persönlichen Besichtigung mit ihrer Fachberaterin Frau Unterrainer von der Immobilie. Nur individuelle Beratung und ausreichende Information führen schnell und sicher zur eigenen Wunschimmobilie.
jetzt anfragen
VERKAUFT - 3-Zi-Citywohnung in Ceconivilla nahe Salzach!
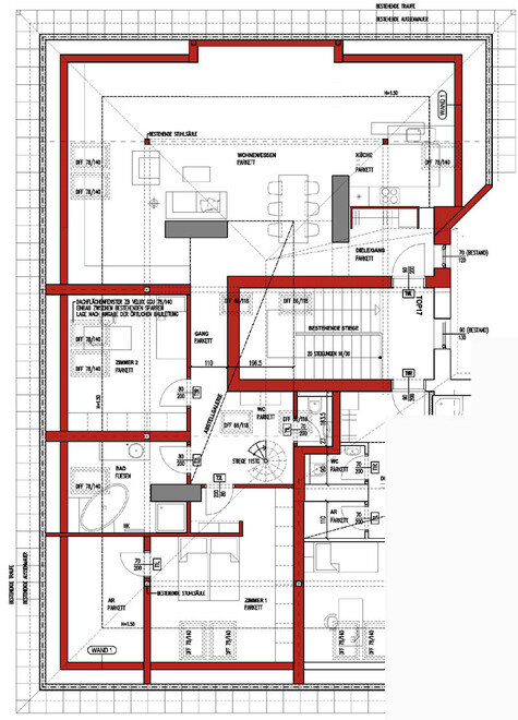
Objekt Nr. 3Großzügige 3-Zi-Citywohnung 130qm, nahe Altstadt und Salzachkai!
Die Dachgeschoßwohnung befindet sich in obersten 4. Stockwerk ohne Lift. Die Wohnung ist nach Dachbodenausbau Erstbezug, direkt vom Bauträger. Die Stadtvilla ist wurde stets gepflegt und anfallende Sanierungsmaßnahmen durchgeführt.
Lage - zentral, mit atemberaubender Aussicht in die Altstadt
Einteilung und Ausstattung:
Besonders hervorzuheben sind das gr. Wohnzimmer, überhohe Raumhöhe, sehr sonnige und bestens lichtdurchflutete Räume, sowie die zentrale Stadtlage nahe Salzach.
- freizügiger loftartiger Dielenbereich bis ins Wohnzimmer
- großzügiges, lichtdurchflutetes Wohnzimmer
- Küche - offener Nischenbereich im Wohnzimmer
- 2 geräumige Schlafzimmer
- Badezimmer und separates WC, modernster Standard
- Parkplätze vor dem Haus, Dauerparkschein ist möglich
In der Stadt wohnen, das Leben genießen!
Ihre Betreuerin Frau Unterrainer steht für Fragen gerne zur Verfügung -Tel: 0664-92 777 62
Die beigefügten Fotos sind Bildanimationen, da die Stadtvilla sich in der Sanierungsphase befindet.
Wir müssen darauf hinweisen, dass die vorliegenden Daten im Vertrauen auf ihre Richtigkeit vom Verkäufer übernommen wurden und können für die vorliegenden Angaben keine Haftung übernehmen.
Dieses Angebot ist unverbindlich, freibleibend, Zwischenverwertung vorbehalten.
| Wohnnutzfläche | ca. 130qm |
| Kaufpreis: | VERKAUFT |






